Community Centre in Zepperen

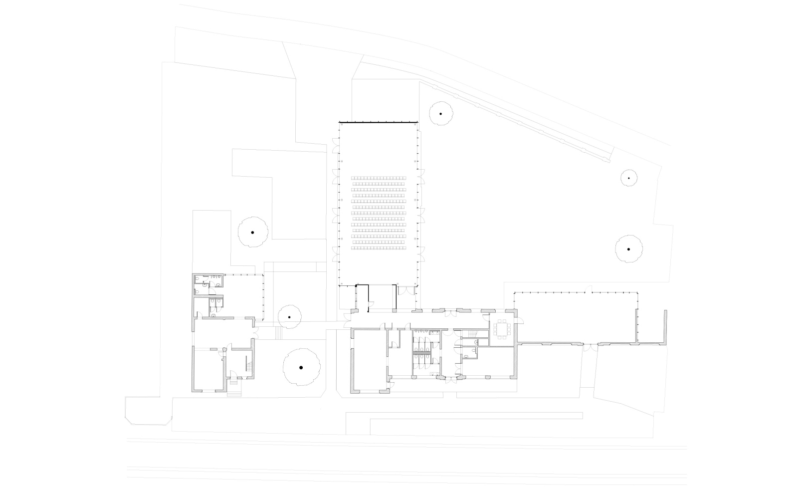
The community of Zepperen counts about 4.000 inhabitants and a surprisingly large number of clubs and associations. These clubs participated in the formulation of a new programme for a dilapidated and underperforming former town hall and school. The site is programmed to compensate for the lack of centrality in this dispersed village and became a community centre with diverse spaces allowing for flexible usage. The outlook is kept intact on the front side by restoring the old buildings, while the backside is shaped into a second front side by inserting new volumes and greening the former playground. The school wall no longer prohibits access to this second frontside, visitors can freely enter the yard. The new volumes clearly distinguish themselves from the old by means of their glass and wood materials and in the rhythmic, vertical articulation. Each new volume is of a different typology. The former town hall is extended with an orangery. The east wing of the school couldn’t be recuperated and was replaced with a double-height hall for an audience of up to 250 people. The south wing, housing a youth movement, is extended by a colonnade facing the former playground. Catering to the multiverse activities taking place inside, each interior has wall and floor finishes matching its proper purpose. New entrances to either one of buildings are mirrored in the axis of a new pathway leading from one street to the other. This pathway runs under the foliage of three monumental trees, a linden, a chestnut and a maple tree.

Timeline

2017-2019

State

Built

Location

Zepperen, Belgium

Type

Community Centre

Size

1.080 m²

Architect

a2o

Client

Stad Sint Truiden

Images

Stijn Bollaert

Share

Related projects